Domicile Gäublick: Erhabene 4-Zimmer-Neubauwohnung in bester Lage

Gäufelden

Highlights

Wohnfläche
ca. 121 m²
Anzahl Zimmer
4
Anzahl Schlafzimmer
2
Anzahl Badezimmer
1
Anzahl Balkon / Terrasse
1
Balkon/Terassenfläche
ca. 12 m²
Anzahl Stellplätze
1
Kaltmiete
1.695 €
Heizkosten
in Nebenkosten enthalten
Kautions Hinweis
3000 €
Miete Stellplatz (Tiefgarage)
80 €

Objektbeschreibung

ERSTBEZUG im Neubau!

Bei dieser 4-Zimmer-Wohnung handelt es sich um den Erstbezug in ein wunderschönes Neubau-Mehrfamilienhaus mit Tiefgarage und Aufzug.

+++ KfW Effizienzhaus 55 +++

+++ Es fällt für Sie keine Maklerprovision an +++

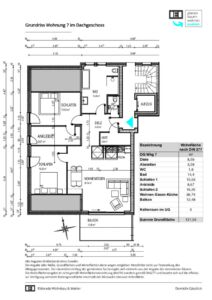
Die Wohnung im Dachgeschoss zeichnet sich wie folgt aus:

Die Wohnung umfasst:

- 2 Schlafzimmer
- 1 Ankleide oder Büro
- 1 Badezimmer mit Dusche und Badewanne
- 1 Gäste-WC
- 1 Abstellraum in der Wohnung
- 1 Kellerabteil im Untergeschoss
- ein helles, offenes Wohn- und Esszimmer mit offener Wohnküche.
- großer Balkon mit Südausrichtung und tollem Ausblick

!!! Vermietung mit Einbauküche!!!

Alle Räume sind hell und lichtdurchflutet.
Die Wohnung ist barrierefrei zugängig.
Praktischerweise gibt es auch einen eigenen, abschließbaren Kellerraum, Fahrradkeller und eine Waschküche.
Zur Wohnung gehört ein Tiefgaragenstellplatz.

--------------------

Angabe der Wohnfläche nach DIN 277 (nicht nach WoFlV): Siehe auch Grundriss-Datei

Diele: 8,59qm
Abstellen: 3,58qm
WC: 1,8qm
Bad: 14,4qm
Schlafen 1: 15,53qm
Ankleide: 8,67qm
Schlafen 2:16,25qm
Wohnen-Essen-Küche: 36,74qm
Balkon: 12,48qm
Kellerraum im UG: 3qm

Summe Grundfläche:121,04qm

Alle Angaben freibleibend ohne Gewähr.
Die Angabe aller Maße, Grundflächen und Wohnflächen dient wegen möglicher Messfehler nicht zur Feststellung des Mietgegenstandes. Der räumliche Umfang der gemieteten Sache ergibt sich vielmehr aus der Angabe der vermieteten Räume.
Die Wohnflächenangabe ist nicht gemäß Wohnflächenverordnung (WoFlV) sondern gemäß DIN277 und bezieht sich auf die effektiv zur Verfügung stehende Bodengrundfläche innerhalb der Mietsache inklusive Kellerfläche.

Highlights

Gehobe Ausstattung
Dusche
Bad mit Badewanne
Einbauküche
Personenaufzug
Tiefgaragenstellplatz
Gartennutzung
Barrierefrei
Keller
Abstellraum
Gäste WC

Ausstattung

- Hochwertige Fußböden in der gesamten Wohnung
- Moderne Badfliesen
- Badkeramik von Villeroy & Boch, Armaturen von Grohe
- Bad mit Dusche und Badewanne
- Elektrische Rollläden, Fußbodenheizung, Videosprechanlage
- KFW 55 Standard
- Fahrstuhl für barrierefreie Erreichbarkeit der Wohnung
- Großer Balkon mit Südausrichtung
- Fußbodenheizung über Wärmepumpe
- 1 Tiefgaragenstellplatz für 80€/Monat

Kontakt

Makler

B.
Ohnmacht

Kontakt

Objekteigenschaften

Flächen

Ort
71126 Gäufelden
Adresse
Marksuhler Ring 70
Etage
2 von 3
Wohnfläche
ca. 121 m²
Anzahl Zimmer
4
Anzahl Schlafzimmer
2
Anzahl Badezimmer
1
Anzahl Balkon / Terrasse
1
Balkon/Terassenfläche
ca. 12 m²
Anzahl Stellplätze
1

Ausstattung

Ausstattung
Gehoben
Dusche
Ja
Bad mit Badewanne
Ja
Einbauküche
Ja
Personenaufzug
Ja
Tiefgaragenstellplatz
Ja
Gartennutzung
Ja
Barrierefrei
Ja
Keller
Ja
Abstellraum
Ja
Gäste WC
Ja

Energie & Heizung

PrimärenergieträgerLuftwärmepumpe
Energieausweisbei Besichtigung
HeizungsartFußbodenheizung

Objekt & Status

Objektart
Ferienimmobilie
Nutzungsart
Wohnen
Verfügbarkeit
Verfügbar
Vermarktungsart
Miete
Baujahr
2024
Zustand
Erstbezug

Objektbilder

Lage

Ort
71126 Gäufelden
Adresse
Marksuhler Ring 70
Etage
2 von 3

Lage

Perfekte Verbindung von Natur und Erreichbarkeit: Diese charmante Mietwohnung in Gäufelden-Öschelbronn bietet nicht nur eine idyllische Umgebung, sondern auch eine ausgezeichnete Anbindung an wichtige Verkehrswege. Die Fahrzeit zur nächsten Autobahn oder S-Bahn nach Stuttgart beträgt ca. 5 Minuten, was sowohl Berufspendler als auch Reiseliebhaber gleichermaßen schätzen werden.

Auch für Vielflieger ist diese Lage äußerst vorteilhaft, da der nächste Flughafen Stuttgart schnell erreichbar ist. Dies ermöglicht eine komfortable An- und Abreise für Geschäftsreisen oder den nächsten Urlaub.
Trotz der günstigen Verkehrsanbindung bleibt die Umgebung ruhig und naturnah. Gäufelden selbst bietet eine charmante Umgebung, in der Erholung und Entspannung im Einklang mit einer guten Erreichbarkeit stehen. Nutzen Sie die Gelegenheit für diese einmalige Mietwohnung.

Google Maps

Mit dem Laden der Karte akzeptieren Sie die Datenschutzerklärung von Google.
Mehr erfahren

Karte laden

Termin Vereinbaren​

Wir würden Ihnen gerne unser schönes Anwesen zeigen. Zögern Sie nicht uns zu kontaktieren. Ein Mitarbeiter wird sich in Kürze mit Ihnen in Verbindung setzen, um Ihren Termin zu bestätigen.

Aussenansicht_5
Nach oben