ERSTBEZUG im Neubau!
Bei dieser 3-Zimmer-Wohnung handelt es sich um den Erstbezug in ein wunderschönes Neubau-Mehrfamilienhaus mit Tiefgarage und Aufzug.
+++ KfW Effizienzhaus 55 +++
+++ Es fällt für Sie keine Maklerprovision an +++
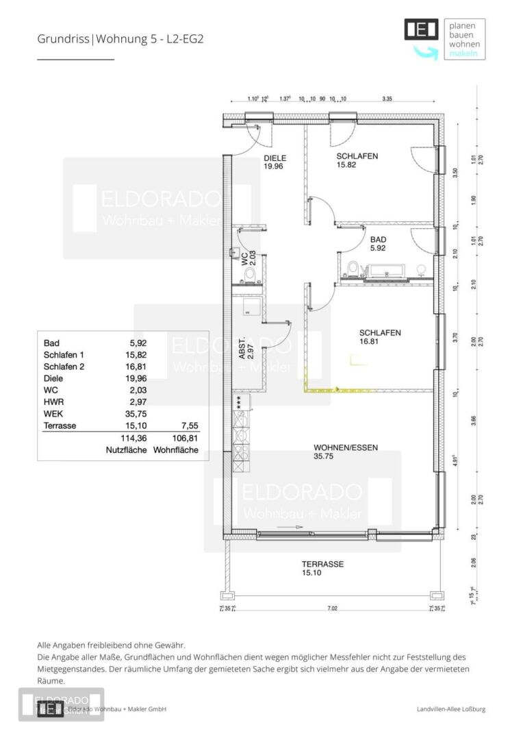
Die Wohnung im Erdgeschoss zeichnet sich durch eine gehobene Innenausstattung aus und kann zum 01.10.2024 bezogen werden.
Die Wohnung umfasst:
- ein großzügiges Schlafzimmer
- ein weiteres Zimmer, das als Kinderzimmer oder Büro dienen könnte
- ein Tageslicht-Badezimmer mit Dusche
- ein separates Gäste-WC
- ein helles, offenes Wohn- und Esszimmer
- ein Hauswirtschaftsraum
Die offene Wohnküche mit Einbauküche grenzt direkt an die Terrasse.
Alle Räume sind hell und lichtdurchflutet.
Die Wohnung ist barrierefrei zugängig.
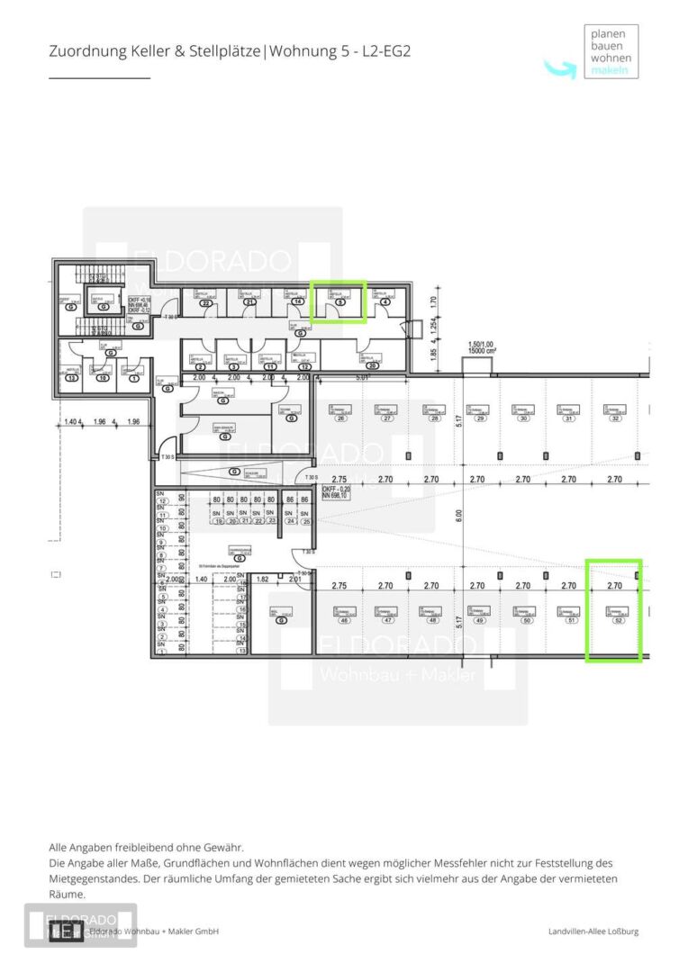
Praktischerweise gibt es auch einen eigenen, abschließbaren Kellerraum, Fahrradkeller und eine Waschküche.
Zur Wohnung gehört ein Tiefgaragenstellplatz.






























