In zentraler Lage von Waldachtal-Salzstetten, in der Oberdorfstraße 4, steht dieses Einfamilienhaus auf einem 396 m² großen Grundstück und bietet rund 147 m² Wohnfläche sowie zusätzliche Nutz- und Abstellflächen. Das Objekt richtet sich vor allem an Käufer, die ein Haus mit Entwicklungsmöglichkeiten suchen und bereit sind, durch Renovierung und eigene Ideen neuen Wohnraum zu schaffen.
Das ursprüngliche Baujahr des Hauses ist nicht genau bekannt. Wesentliche Umbauten erfolgten 1970er und 1980er Jahren, wodurch das Gebäude seinen heutigen Grundriss erhielt. Das Erdgeschoss ist massiv gebaut, während Ober- und Dachgeschoss in Fachwerkbauweise ausgeführt sind.
Die Wohnräume verteilen sich über mehrere Ebenen und bieten eine solide Grundlage für eine Modernisierung nach eigenen Vorstellungen.
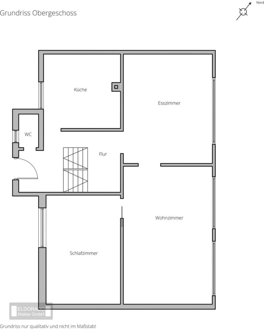
Im Obergeschoss befinden sich das Wohnzimmer, Esszimmer, ein Schlafzimmer sowie die Küche und ein separates WC. Von hier aus gelangen Sie auch in den hinteren Bereich des Grundstücks mit Terrasse und Garten.
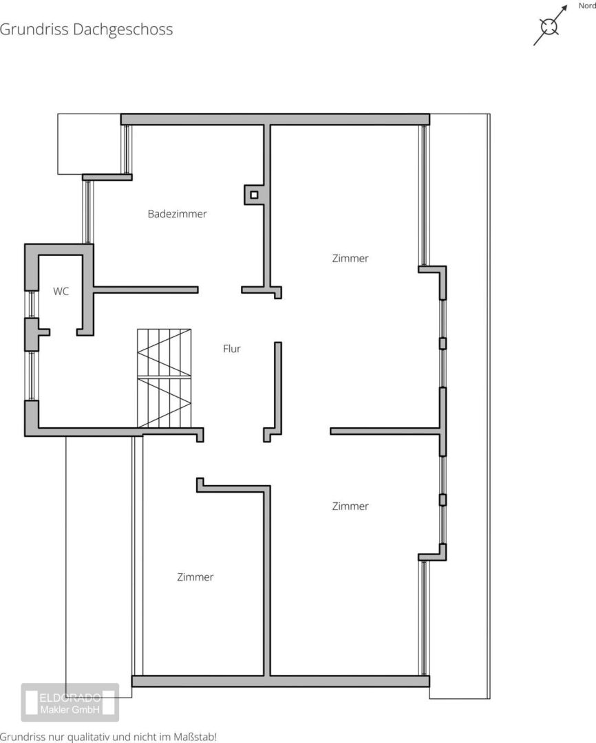
Das Dachgeschoss bietet drei weitere Schlafzimmer sowie ein Badezimmer. Darüber hinaus steht im Dachbereich zusätzliche Abstellfläche zur Verfügung.
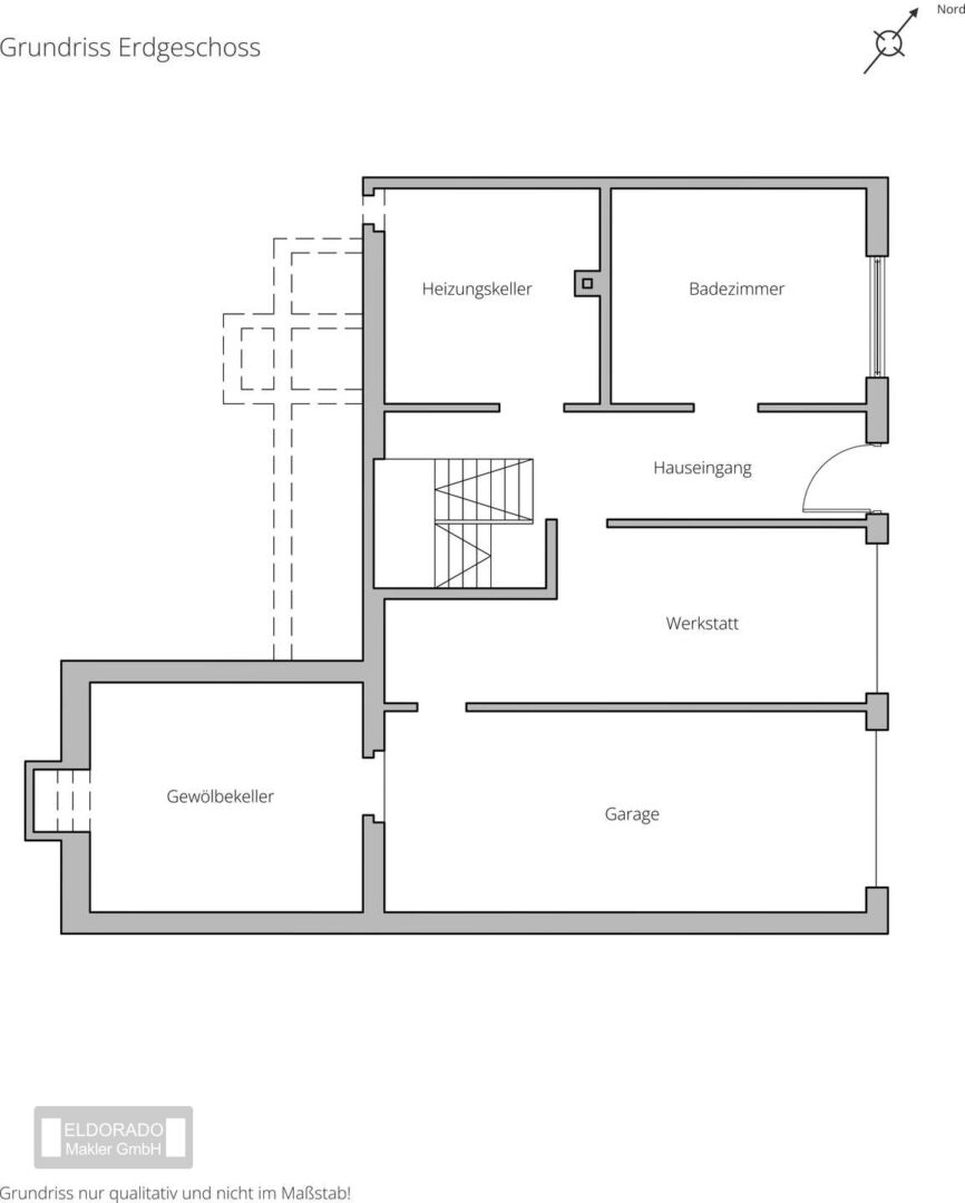
Im Erdgeschoss befinden sich neben der Einzelgarage ein Gewölbekeller, eine Werkstatt, ein Bad sowie weitere Keller- und Abstellräume.
Ein besonderes Highlight ist der sehr große Schopf mit mehreren Räumen, Starkstromanschluss und einem Dachboden. Diese großzügige Fläche eröffnet vielfältige Möglichkeiten – etwa als Werkstatt, Lager, Hobbybereich oder für andere individuelle Nutzungsideen.
Das Haus befindet sich insgesamt in renovierungsbedürftigem Zustand. Eine klassische Zentralheizung ist nicht vorhanden; aktuell erfolgt die Beheizung über Einzelöfen mit Öl bzw. Strom. Gerade für Käufer mit handwerklichem Geschick oder mit der Bereitschaft zu umfassender Modernisierung bietet sich hier die Chance, ein Haus mit viel Raum und Potenzial zu einem attraktiven Kaufpreis von 145.000 € zu erwerben.





